How Millwork Shop Drawings Improve Project Accuracy

Posted by Drawstick LLC 2 hours ago

Filed in Business 20 views

In construction and interior fit-out projects, even a small measurement mistake can cause costly delays. A cabinet that is half an inch too wide or a reception desk that blocks a doorway can lead to rework, wasted material, and unhappy clients. This is where millwork shop drawings play a powerful role.

Whether you are a contractor, architect, builder, or fabricator, understanding how millwork drawings improve project accuracy can save you time, money, and stress. In this article, we will explain everything in simple words, provide step-by-step guidance, and show why investing in professional shop drawing services is one of the smartest decisions for your project.

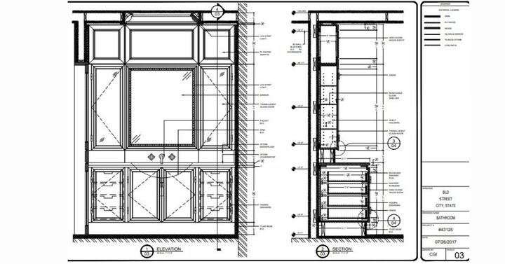
What Are Millwork Shop Drawings?

Millwork shop drawings are detailed technical drawings prepared before fabrication begins. They show exact measurements, materials, joinery details, hardware placement, finishes, and installation instructions for custom woodwork items like cabinets, wall panels, counters, and shelving.

Unlike architectural drawings, which give a general design idea, cabinet shop drawings go deeper into fabrication-level details. They answer practical questions such as:

  • How thick is the material?

  • Where are the hinges placed?

  • What type of edge banding is used?

  • How will the units be assembled on site?

Why Accuracy Matters in Construction Projects

Let me share a quick story.

A contractor once started fabricating reception counters without reviewing detailed millwork drawings. Everything looked fine on paper. However, once the units arrived on site, they discovered the electrical outlet placement was not aligned with the cabinet design. The result? Re-cutting panels, extra labor costs, and project delay.

This situation could have been avoided with precise millwork shop drawings.

Accuracy matters because:

  • Materials are expensive

  • Labor costs are rising

  • Timelines are tight

  • Clients expect perfection

How Millwork Shop Drawings Improve Project Accuracy

Now let’s break it down step by step.

1. Clear Visualization Before Fabrication

First, millwork shop drawings provide a complete visual representation of the final product. Every dimension, elevation, and section detail is clearly defined.

Because of this, architects, contractors, and clients can review and approve the design before production begins. This reduces misunderstandings and eliminates guesswork.

Professional shop drawing services make sure nothing is left unclear.

2. Precise Measurements and Dimensions

Second, accurate dimensions are the backbone of quality millwork. Cabinet shop drawings include exact width, height, depth, and spacing measurements.

This ensures:

  • Cabinets fit perfectly within walls

  • Countertops align with appliances

  • Doors and drawers open smoothly

3. Material and Hardware Specification

Another major advantage of millwork drawings is detailed material information.

They specify:

  • Type of wood or laminate

  • Thickness of panels

  • Hardware brands

  • Finish details

Using tools like cabinet and millwork estimating software, professionals can match drawings with accurate material quantities. This reduces waste and controls budget.

4. Better Coordination Between Trades

In construction, many teams work together — electricians, plumbers, HVAC installers, and carpenters.

When millwork shop drawings are properly prepared, coordination becomes easier. For example:

  • Electrical outlets align with cabinets

  • Plumbing connections match sink base units

  • HVAC ducts don’t clash with ceiling panels

5. Reduced Rework and Cost Overruns

Rework is one of the biggest problems in construction projects. It wastes money and damages client trust.

By using professional shop drawing services, errors are identified during the review stage instead of after fabrication. This early detection saves:

  • Material costs

  • Labor hours

  • Delivery time

6. Faster Approvals and Smoother Communication

Clients and consultants feel more confident when they see detailed millwork drawings.

Clear drawings mean:

  • Faster approvals

  • Fewer revision cycles

  • Less confusion

Step-by-Step Guide: How to Use Millwork Shop Drawings Effectively

Here’s a simple process you can follow:

Step 1: Share Architectural Plans

Provide complete floor plans, elevations, and specifications to your drafting team.

Step 2: Prepare Detailed Cabinet Shop Drawings

Include sections, joinery details, and hardware placements.

Step 3: Review and Revise

Consult with architects, contractors, and clients to confirm dimensions and finishes.

Step 4: Use Estimating Tools

Apply cabinet and millwork estimating software to calculate material quantities and cost projections.

Step 5: Final Approval Before Fabrication

Never start production without signed approval of the final millwork shop drawings.

Following this method dramatically improves project accuracy.

Why Choose Professional Drafting Experts Like Drawstick

When accuracy matters, working with experienced professionals makes all the difference.

Drawstick specializes in high-quality millwork shop drawings that meet industry standards. Their team understands fabrication techniques, material behavior, and installation challenges.

By choosing Drawstick, you get:

  • Detailed and precise drafting

  • Quick turnaround time

  • Budget-friendly pricing

  • Improved project coordination

Many contractors who once struggled with rework now rely on professional drafting solutions to keep projects on track.

Investing in expert shop drawing services is not an expense — it is a smart business decision.

How Millwork Drawings Build Client Confidence

Imagine presenting your client with detailed 3D views and section details. Instead of guessing how their cabinetry will look, they see the final result clearly.

This transparency builds trust.

Clients feel secure when they know:

  • Measurements are verified

  • Materials are specified

  • Installation is planned

The Competitive Advantage in Modern Construction

Today’s construction industry is highly competitive. Builders who use advanced drafting methods and cabinet and millwork estimating software stay ahead of the competition.

Accurate millwork shop drawings lead to:

  • Higher quality finishes

  • Lower error rates

  • Better project timelines

  • Increased profitability

Conclusion

To sum up, millwork shop drawings are not just technical papers — they are the foundation of project accuracy. From precise measurements to trade coordination and cost control, detailed millwork drawings eliminate errors before they happen.

When combined with professional shop drawing services and modern estimating tools, they significantly reduce risk and increase efficiency.

If you want smoother installations, satisfied clients, and better profit margins, investing in expert drafting solutions like Drawstick is the right step forward. Accuracy is not optional in construction — it is essential.

FAQs

1. What are millwork shop drawings used for?

They are used to provide detailed fabrication and installation instructions for custom woodwork items like cabinets and panels.

2. How do cabinet shop drawings reduce errors?

They provide exact measurements, joinery details, and hardware placement, preventing fabrication mistakes.

3. Why are professional shop drawing services important?

They ensure accuracy, compliance with standards, and better coordination between trades.

4. Can software improve accuracy in millwork projects?

Yes, cabinet and millwork estimating software helps calculate material quantities and reduce waste.

5. Why should I choose Drawstick for millwork drawings?

Because they provide accurate, detailed, and reliable drafting solutions that help prevent costly project errors.